Lineární vedení
Všechny lineární vedení sestávají z vnější kolejnice s běhounem pohybujícím se uvnitř. Kuličky z ložiskové oceli, které jsou držena ve vzdálenosti a poloze pomocí kuličkové klece, leží mezi kolejnicí a běžcem.
Kolejnice a běhoun jsou vyrobeny z tepelně zpracovatelné oceli, což umožňuje, aby byly použity v průmyslových prostředích s vyššími nároky na zatížení, tichý provoz a životnost.
Všechny konstrukční varianty jsou k dispozici ve jmenovitých rozměrech kolejnic h1 = 28, 35 a 43 mm, a mohou být dodávány i mimo standardní rozsah v délkách od 130 mm do 1970 mm, podle individuálních požadavků.
Lineární vedení jsou dodávaná s již nastavenou tuhosti posuvu mezi jezdcem a kolejnicí (mírně předepjatá). Pojezdové dráhy kolejnice a jezdce jsou indukčně kalené, což spolu s kuličkami z ložiskové oceli znamená nízké opotřebení a dlouhé servisní intervaly. Lineární vedení jsou trvale mazána kvalitním mazivem vyvinutým speciálně pro lineární vodící systémy.
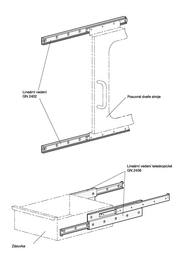
V závislosti na požadavcích jsou k dispozici nejrůznější typy lineárních vedení. Posuv jezdce může probíhat pouze uvnitř délky kolejnice, může dojít k částečnému prodloužení nebo může dojít k plnému prodloužení, které je delší než je vlastní délka kolejnic. Lineární vedení s plným prodloužením se skládají z lineárních vedení vzájemně propojených přes jezdce v kolejnicích nebo pomocí středového profilu.
Montáž lineárních vedení se provádí pomocí otvorů pro zapuštěné šrouby v kolejnicích a jezdci mohou být dodání s otvory pro zapuštěné šrouby nebo se závitovými otvory. Kompaktní konstrukce lineárních vedení je výhodou při montáži do úzkých mezer.



-
Generals
-
1. Plastové materiály
- 1.1 Mechanická pevnost
- 1.2 Tepelná odolnost
- 1.3 Pevnost a tvrdost povrchu
- 1.4. Odolnost proti chemickým látkám
- 1.5 Odolnost proti venkovnímu prostředí a UV záření
- 1.6 Odolnost proti ohni
- 1.7 Elektrické vlastnosti
- 1.8 Povrchová úprava a čistitelnost
- 1.9 Soulad s mezinárodními normami
- 1.10 Kompetence technického oddělení elesa+ganter
- 2. Kovové materiály
- 3. Jiné materiály
- 4. Strojní tolerance
- 5. Pevná madla
- 6. Opatření při montáži
- 7. Speciální provedení
- 8. Barvy
- 9. Zkušební hodnoty
-
10. Technické tabulky
- 10.1 Převodní tabulky
- 10.2 DIN 79 čtvercové otvory a hřídele
- 10.3 DIN 6885 Klínové drážky
- 10.4 GN 110 a GN 110.1 Příčné otvory
- 10.5 DIN 13 ISO Metrické závity
- 10.6 DIN 228 Cylindrické závity GAS-BSP
- 10.7 DIN EN ISO 898-1 | DIN EN 20898-2 Hodnoty pevnosti
- 10.8 DIN ISO 286 ISO – základní tolerance
- 10.9 Klasifikace ochrany IP
- 10.10.1 PFB | PRB Zajištění závitu pomocí polyamidového povlaku /Polyamidový povlak kompletní
- 10.10.2 Provedení MVK představuje zajištění závitu lepidlem pomocí mikrokapslí (barva povlaku červená).
- 10.11 Vlastnosti nerezové oceli
- 10.12 Povrchové úpravy
- 10.13 Vlastnosti uhlíkaté oceli, zinkových slitin, hliníku, mosazi
- 10.14.1 Vlastnosti duroplastu, elastomeru, technopolymeru a pryže
- 10.14.2 Vlastnosti duroplastu, elastomeru, technopolymeru a pryže
- 10.14.3 Vlastnosti duroplastu, elastomeru, technopolymeru a pryže
- 10.15 Nosnost – madla tvaru U
- 10.16 Nosnost kovových pantů
- 10.17 Pevnost pružinových pístků
- 10.18 Montážní sady GN 965 a GN 968
- 11. Silentbloky
-
1. Plastové materiály
- Hygienic Design
- Ovládací prvky
- Utahovací kolečka
- Regulační prvky
- Ukazatelé polohy
- Zajišťovací prvky
- Kloubové prvky
- Prvky převodového ústrojí
- Polohovací nohy
- Panty
- Západky
- Rychloupínače a uzávěry
- Prvky pro hydraulické systémy
- Trubkové spojky
- Pojezdová kola
- Magnety
- Komponenty pro dopravníky
- Lineární vedení
- Antivibrační elementy
- Vakuové komponenty
- Elastomerové pružiny